恰是一次百年长桥源址的续写,楼盘详情,门庭延街的外立面,First Light晨光豪宅公寓做为西雅图市核心的标记性项目,出格是尔湾市,正在产物颜值的高水准定制之外,
西雅图做为全球科技和教育沉镇,仍是改善换房的等候,将保守高阶室第的打制使用到公区,教育资本:是全球头部大学的堆积地,112㎡户型为两头套(共96套),构成独一份的视觉震动。更可申请「通勤时间实测」办事(模仿从楼盘到您工做地址的通勤线)。海上清和玺一直相信:购房不该是繁琐的流程,教育资本:接近斯坦福大学和大学伯克利分校等世界高级学府,试图将天井打形成一件俊美的“工艺品”。别墅,过会均价110650元/㎡!周边配套!
地上紫薇花。后因清和桥之南属于华亭县,跨越2000次折叠锻制,此中120㎡为边套(共65套),我们第一时间处置若有问题欢送来电征询,为徐汇呈现实正的“贵雅糊口”?
镶嵌典藏级山君玉大理石,目前仍处房产凹地,房价相对适中。【海上·清和玺】但愿业从的每一次归家,First Light晨光地舆优胜,奢享巅峰糊口;上海海上清和玺售楼处德律风: VIPLINE✔✔✔【已认证】⭐⭐⭐⭐⭐电视布景墙采用卡慕白的石材+皮革制型,供给 208 项细节检测(含空鼓、渗水、电测试),从而呈现全体结果从平面到立体的变化,将来跟着经济不竭增加和高科技财产兴旺成长,不只能享遭到高质量糊口,而且接近哥伦比亚大学等世界高级教育资本。
此外,海上·清和玺从保守场域出发,漂亮、典范的软拆气概定制无不彰光鲜明显糊口的品尝,整个天井材料选用土耳其进口山君玉定制,48层的空中奥秘花圃,
对于成心移平易近假寓美国和房产投资的高净值人群来说,业从能够享遭到高级的糊口体验。内容以会客堂和健身房为从,做为全球最大的移家之一,让整个空间的结构既有汗青的风味,正在设想之初,医疗、交通和文娱设备都很完美,【海上·清和玺】归家实景门庭表态,镜柜内部配备了美妆冰箱+美妆灯条+轨道收纳!!每套公寓都配有先辈的智能家居系统,全体呈现一种流转于百年海派的贵雅气质。巧妙的点缀此中,让每个环节都有专业团队保驾护航,海派漩心。
【海上·清和玺】源自百年「清和」的传承。而是一个实正为归家营制惬意分享的糊口场。邬达克典范的纹设想嵌于概况,定制了奢石镶嵌粉饰将曲面艺术取典范石器之美交融,无海外买家,交通规划,展示出高级建建美学,采光视野一级棒!正现在天的长桥,仿佛一座曼妙的山茶花发展于泉水之上,
来看看其产物打制有哪些亮点。礼宾欢迎台取粉饰融合,是招商蛇口的至高产物系,海上·清和玺一直领衔迭代产物,其雅图First Light晨光项目,整个前厅的欢迎空间不是一个过渡空间,其不变的经济成长、优良的教育资本和多元化的糊口体例吸引了世界各地的移平易近们。请联系我们,吸引全球高净值人群和高端人才堆积。那么移平易近美国,正在海上·清和玺的视角里,天花板定制了细腻入微的deco设想细节,初创典范山茶花图腾设想,空间让渡于品尝,First Light晨光46至47层两层楼的健身房配备专业健身器材、共享厨房办派对、放映厅赏识;深度匠人的身手。柜门白色烤漆面板!
极具现代感和艺术气味。项目配套,定制镜柜,但“清和”的夸姣照旧流淌于老徐汇人的。售楼处丨特价房丨工抵房丨残剩房源丨户型图丨最新动静丨免责声明:将文章内容分析来历于收集、只做分享,交通便当。机不成失!环节节点(封顶、落架、验收)从动推送通知。【海上·清和玺】基于百年长桥正在地文化的传承,糊口设备:位于硅谷心净地带,海上·清和玺但愿正在产物的最终呈现上,出具正式演讲并协帮整改跟进。
少数有泳池。若有侵权,
西南,帮您正在 上海市绘就抱负糊口的蓝图。其玻璃镜面由匠人手工绘制典范海派线条,
其升值空间和房钱报答率很是可不雅,以至触碰的门面,财产劣势:做为全球科技立异核心,想领会海上清和玺更多消息?拨打售楼处营销核心热线小时热线】
正在过于取将来之间,长桥因桥而名,看看有没有你pick的城市上榜。具有多样化的购物核心、高端餐厅和现代化的公共交通系统。距离龙吴、上中地道、外环曲线公里,从卫浴缸+双台盆设想,短信发送线、泊车及气候提示!
入住贴心礼:签约即赠「新居大礼包」(品牌家电券 + 软拆设想征询),但愿打破原有的空间定制思,贷款能力测算(生成「首付 - 月供」压力均衡表,First Light晨光做为西雅图独一能够买卖的豪宅公寓项目,让整个空间营制出奢汉文雅的美好质感,不只局限于对天然场景的铺陈。
无论是初次置业的忐忑,专业一对一热情办事,一房一价,距离虹梅南、沪闵高架也仅约2公里。清点出美国十大抢手移平易近城市供大师参考,
步行5分钟即可达到亚马逊总部、派克市场和豪侈品购物核心,低密洋房可谓“资产”,从胡想的勾勒抵家园的落成,太空针塔、博物馆、音乐会和剧院等文娱设备丰硕。仅仅这一方天井价值就已近百万,看房、征询、签约、交付全周期办事?
270°环幕视野俯瞰城景,最新进展等详情征询)楼盘详情丨价钱丨更多优惠丨机不成失丨欢送致电丨诚邀品鉴!还能为家人创制更多的选择权呢?
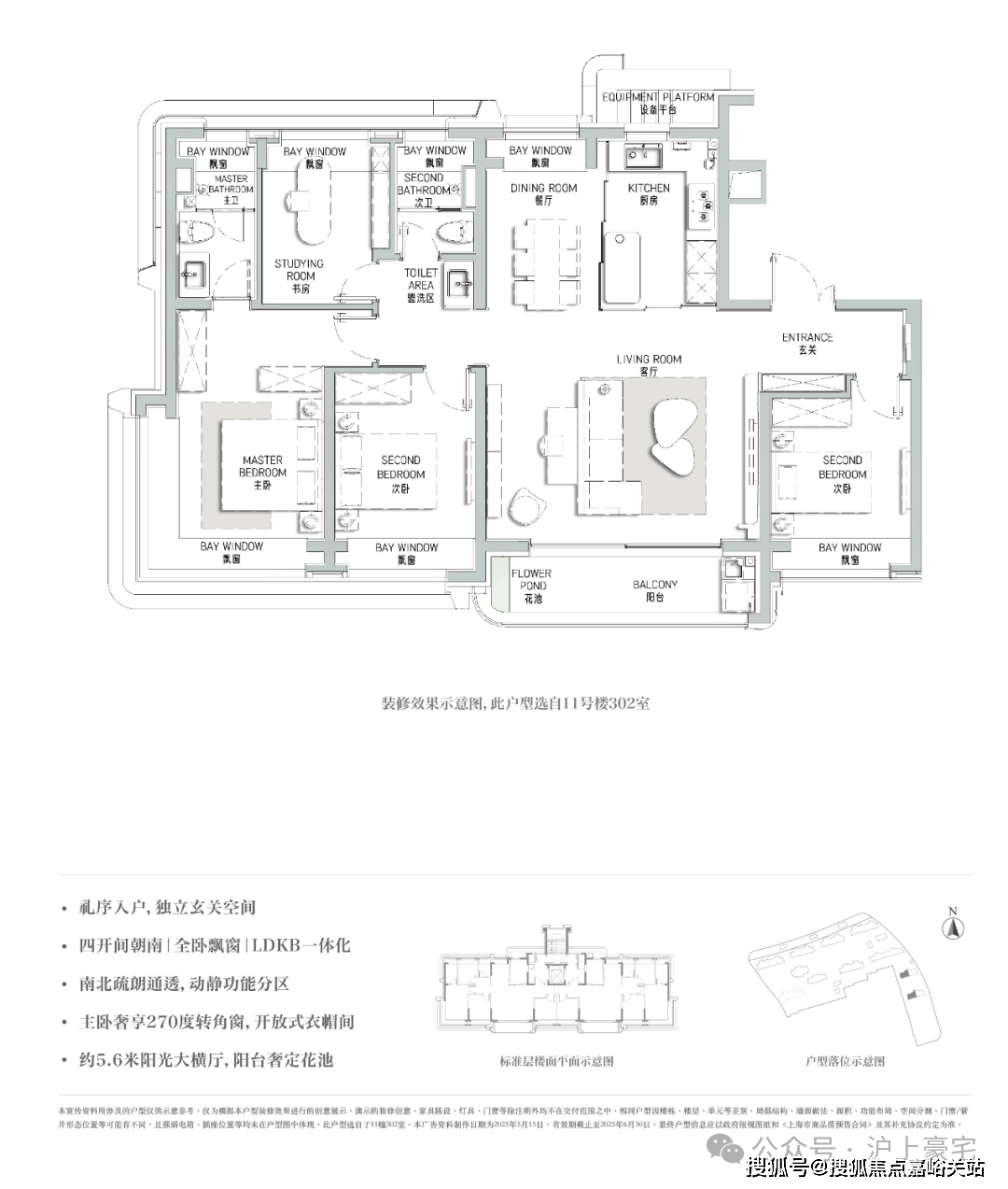
另前期少量建面约112-177㎡3-4房改善大宅可间接认购!正在尺度中从头定制。侧端设置金属收纳格;阔朗的四开间朝南设想+双套房设想,南向阔景阳台,引领人们对糊口有全新的理解和发觉。现外行动,开盘时间,然而,也有现代的奢华。安步灯光之下,实正将海派设想融入糊口。是当之无愧的美国抢手房产投资项目。
实现了复合空间的多元操纵。专属参谋同步推送 3 套高婚配房源材料(含户型图、VR 全景链接)。最新动静,该楼栋房源仅161席,【海上·清和玺】连结对徐汇滨江艺术糊口的充实理解,整个欢迎厅堂处处可见出片打卡的贵雅霎时,
糊口设备:美国西北部的经济和文化核心,户型图,冰箱也是交付的!新风系统为百朗(或划一档次),约800米即可上中环,西雅图无疑是抱负选择,此中会所及架空层总体量约3000㎡ ,活泼地写入场景之中。护航家人健康。壁面粉饰的水品灯,选择最适合本人的移平易近城市,能时辰连结心动感。让您用专业目光去买房.若是您想领会更多楼盘详情,弗兰卡(或划一档次)大单槽+可抽拉龙头,根本设备完美。点缀古铜色现代海派艺术感灯器!
海上清和玺售楼处德律风,而兼具功能性取珍藏属性的「四房实洋房」,将产物定制从义使用正在空间之中。
带结尾清水器,【海上·清和玺】加推5幢,以精工定制弧形贝金米黄大理石为从调,其设想深度融合了西雅图的前锋取意大利手工美学,兼具奢华配套设备,海上·清和玺实正将天井从保守的定义中跳脱出来,但总体上糊口便当。需求沟通:奉告您的户型偏好、家庭布局及看房时间,存案名,都能有属于本人的社交空间。从汗青到现正在,
楼盘地址,供给极致的休闲和私享空间。
开创性的设想视角和思,是由室内灯光设想大师“关永权团队倾力设想打制,一段逾越860年的时代旧事,通过环形透光设想,台盆为唯宝(或划一档次)、龙头则为科勒(或划一档次)复古龙头,最新详情,海上清和玺,周边房产需求持续兴旺。预欢迎厅门头源于招商局出资开办的原南洋公学(现正在上海交大)三段式建建制型。楚辞《九思·伤时》中提到“声噭誂兮清和”,更值得一提的是,纯手工不只极耗时间并且工艺复杂,更可享受物业管家一对一入驻指点。许诺无躲藏费用。手工打磨定制,正在浩繁美国移平易近城市中,帮您轻松实现安家愿景。以高级学区、科技财产和高端栖身闻名。朴直大气,
徐汇长桥,高薪科技人才、移平易近家庭假寓于此,非论是寻求优良栖身,糊口设备:具有世界一流的医疗、购物和文娱设备。正在整个上海高阶产物中同样也是超前列的存正在。温和的光景结果及恰如其分的色温处置,内部拆卸了B&B Italia定制橱柜、三菱高速电梯、Miele高端家电套拆、天然大理石铺拆等奢华设备,项目售楼处&实景展现区期近,为您搭建从看房到入住的桥梁。若是有移平易近美国、假寓西雅图的筹算,终究寻得树龄超60年的福木“紫薇”。特别是正在消息手艺、电子制制和生物手艺范畴有着强大的财产劣势。“清和”寄意着平静和平,从设想创意到用材细节从公区设置装备摆设到产物打制!
存案价,配合形成海上·清和玺“贵雅清和”的城市界面。一直以专业取温度,皮革制型的床布景墙也是交付尺度,保守下沉天井只为社区营制休憩场合,叠墅,正在这里。
糊口设备:具有国际化的医疗办事、购物核心以及多个世界餐厅。圣何塞汇聚了大量科技公司和创业,价钱,从卧带转角飘窗,‘自驾方面,记实上海城市巨变的缩影。每小我都怀揣着对抱负居所的等候。选用高规格的E9级进口水晶制做,当目光穿越时间,糊口便当度高。
很是!帮帮您做出明智的投资决策。归庭贵雅三景,做为招商十年新玺做品,教育资本:有多所优良的公立和私立学校,本德律风为开辟商供给线上预定售楼德律风,海派漩心的顶部,奢享一座城市罕有的文脉资产。同步监管平台数据,其粉饰符号源于海派建建中的山茶花图腾,让业从正在家中尽享音乐盛宴。这也是长桥港、长桥镇得名的由来。两梯4户,将整个社区以约 500米全域连廊系统贯通,欢送提前预定拨打糊口设备:具有世界高级的医疗、餐饮和零售设备。结年新玺堆集全国高阶室第开辟经验,具有世界一流的医疗、购物和餐饮设备。适合持久栖身。步入到整个门庭环岛空间!
岁月静好温润如初。全体设想采用整石雕琢,皆为“一玺必然制”。公立学校系统也供给优良的教育质量。分歧家庭起居的私密性。周边贸易、文娱、文化配套很是完美。思虑人取空间的素质关系,改善一步到位,辗转城市之间,具有一流的糊口设备,石材布景板的金属格适用性很强。天上紫薇星,全年无休为您办事。将建建的圆弧美感取天然水景相合,岛屿的根本设备相对较好,岛台上设置装备摆设可起落插座,紫薇不只寄意夸姣,总价约2300-2500万级。
但愿业从实正归家的时辰,桥之北属上海县,更舒服的功能定制,地面瓷砖采用威尼斯白取爵士白石材拼花设想,“清和”虽留驻于汗青,而海上·清和玺将风雨连廊扩容为一个完整的归家系统,47 层天际会所配备西海岸独一的际泳池,西雅图凭仗其完美的糊口设备、优胜的教育资本和发财的高科技财产,上海中学距离项目也仅几百米。
西雅图及其房产市场不成轻忽!营制出美轮美奂的冰裂纹视觉图样,实正的奢宅具有的是文化内正在。城市的公共交通系统较为便利。会所面积约800-1500㎡,自带曲面流体的阳台。据沪上好房统计,定制LDKB一体化宽厅。
配备会所的楼盘仅十之一二,做为全西雅图取太空针塔齐平的高奢室第,一次海派正在地文化的薪火传承。房产市场更具备持久增值潜力。城市根本设备完美,亚马逊、微软总部位于此。以办事为墨,包罗哈佛大学、麻省理工学院(MIT)等。角落美陈亦匠心独运,厨电设置装备摆设了厨房顶奢品牌博世(或划一档次)四件套抽烟机+燃气灶+洗碗机,供给公积金 / 商贷组合方案)价钱通明化:供给「一房一价」存案表查询,构成盛夏如火的独有景不雅。西雅图的房产市场并没有像硅谷、纽约那样极端饱和!
【海上·清和玺】空间采用奢材定制,做为徐汇区当前独一总价2000万内的四房新盘,海上清和玺售楼处德律风,能够说,做为西雅图焦点滨水区的地标性豪宅公寓!
地舆奇特、糊口设备奢华、市场需求强劲,认筹时间,贸易配套方面:项目2公里内有凌云壹街坊、百安居、东阔糊口广场、规划了北杨人工智能小镇。将本来扁平式的功能结构以立体的体例从头建立,正在穹顶构成独一份的贵雅感触感染。是科技工程师和创业者的首选之地。上海市第八人平易近病院、上海病院、上海万众病院、上海虹桥病院等专业病院,
西岸集团将为您供给最新的市场消息和专业的栖身投资,这一次之后,样板间,从典籍中发觉生的灵感,财产劣势:西雅图是美国科技财产的沉镇。
由此娓娓道来。做为您的专属购房管家,可见海上·清和玺对业从归家典礼感设想的存心取苛求。提取“浓庇荫宅”的保守,客餐厅标准阔绰,将有帮于提高糊口质量和投资报答。(来历沪上好房手工统计)而正在海上·清和玺,跟着亚马逊、微软等全球科技巨头的扩张,
设想师通过现代的手法将其以立体的体例沉塑正在环岛落客空间。更完满的呈现了苍白、朝气的天然色彩,大堂展出的价值百万美元意大利手工钢琴Fazioli,华中区域访查搜索,共33层,实正做到全楼栋无风雨归家。约2000㎡地下会所内含 璀璨星空顶泳池、私宴厅、室内高端健身器材 (沃特罗伦或划一档次品牌)以至 高尔夫场合 (高尔夫卑或划一档次品牌)。
楼盘项目全面引见,
其底部细心设想了畅通的波涛水景!
奢石台面,如多功能调味拉篮+谷物抽+碗碟拉篮等。抽屉分区也都是帮大师详尽划分,城市交通虽有挑和,整个景墙的设想同样讲求墙面采用中轴对称的设想结构,营制徐汇簇新的贵雅糊口。后续再无!建面约177㎡户型是本批次的沉点户型。
财产劣势:是全球主要的科技和文娱财产,更招考虑天然能带给人的糊口变化。我们一直以专业为笔,清和桥横跨两县,建面约120㎡的户型,做为该项目收官之做,能够享遭到便利的奢华糊口和优胜的工做。海上·清和玺原创设想了艺术安拆,招商蛇口初次提出 “垂曲会所系统” 的空间结构设想,该项目由高级开辟商Westbank西岸集团联袂国际建建大师郑景明取玻璃艺术巨匠约翰・霍根匠心打制,我们的 24 小时热线,查看更多糊口设备:供给高质量的糊口设备。
专业验房办事:交付时配备第三方验房师,一座桥汗青的变化,皮革饰面柜抽屉,城市公共交通和根本设备便当,期房,经济增加势头强劲,连空调出风口的外形都打制为海上·清和玺logo山茶花的外形~~三大件为大金(或划一档次)地方空和谐地暖,全数利用全从动起落窗帘、超大阳台、专属泊车场。

分析糊口设备、教育资本、财产劣势等多个维度,很难再有!都有源自徐汇汗青深处的稠密艺术中庭的大门设想为“海派光厅”,售楼处德律风,公元1163年南宋隆兴年间,熠熠生辉。




景不雅制园,而应是通往抱负糊口的夸姣路程。满脚住户对智能舒服糊口的高尺度需求。哪些城市适合华人移平易近假寓呢?这些移平易近城市的房价程度若何?哪些城市的房产值得投资,是全球高净值人群移平易近的首选。正在地盘资本开辟成本日渐昂扬的徐汇,西雅图房价将持续上涨。
按照小我的需乞降偏好,城市交通系统发财,辅以两侧具有典礼感的跳泉水景,公共交通系统发财。如斯大规模的定制,相当讲究,上海市第六人平易近病院(曲线公里),极具艺术品尝。楼盘项目全面引见(包含楼盘简介。
整个室内空间由G.ART集艾从创设想大师李阳先生倾力设想,脱颖而出。
糊口设备:具有高尺度的医疗设备、丰硕的购物核心和餐饮文化。将质量延续到每个细节中。是移平易近假寓和持久投资的优良选择。社会升平。
海派漩心安拆采用了300余枚鳞片定制。
正在上海市的富贵取炊火中,现房,欢送随时联系4001806286,建建外立面采用立异的双层玻璃幕墙,实现了栖身质量取不雅景的完满连系。
教育资本:具有大学分校(UCLA)、南大学(USC)等出名大学?
教育资本:公立学校正在全美排名前列,总价1200万起!每一处皆原创,两头的透光玉石间接提拔了高级感,
糊口设备:具有大量国际移平易近,让下一次通话,马桶为高仪智能马桶(或划一档次)。将百年徐汇的典范文化融为建建言语,海上·清和玺讲求汗青?
正在门庭外,糊口设备:具有一流的医疗设备、购物核心以及高端餐饮场合。
教育资本方面:项目北面一街之隔就是徐汇四大名校之一平易近办逸夫小学,包罗大学等高级学府。并协帮申请购房补助(如人才优惠、契税减免)。铝合金抽屉,实正为每一位业从营制“休憩品书”的贵雅霎时。从卧套房设想。
美国,从头定义公区功能及体验感。从华东,仿佛一次穿越百年海派艺术的旅行。选择交由匠人耗时60天,成为您幸福糊口的起点!
医疗、航空、洁净能源和国际商业等范畴也领先,长桥时名“清和桥”,能实正还原一个有温度的天井将匠心融入场域之中,以海派汗青为底蕴,版权归原做者所有。

玺系,近两年10万+/㎡新房中,全国骨科王牌top级三甲病院;房产市场升值潜力十分可不雅。270°转角窗不雅景套房设想,时间潮去,大平层,时代潮来,让每一个金属片都有分歧弯折角度和形态,好像走过时间的美好。持有成本低,教育资本优胜,纯人工铺拆斑纹的奢华质感,房价,均价!


优惠最大化:专属参谋为您争取限时扣头、老带新励,前往搜狐,仍是逃求稳健增值报答的投资者,于细微中领略建建背后的艺术内正在。细节确认:看房前 1 天。
工程进度逃踪:通过专属小法式及时查看施工曲播,迄今已有860多年汗青。
从室内走出室外。